Warning: SessionHandler::read(): open(/var/www/100500kotlov.ru/data/mod-tmp/sess_847c3d47660048d7674734abf22bc496, O_RDWR) failed: No space left on device (28) in /var/www/100500kotlov.ru/data/www/kotlom.ru/vendor/symfony/http-foundation/Session/Storage/Proxy/SessionHandlerProxy.php on line 59
Котёл КВр-0,35 на древесных отходах с топкой ОУР — купить в Анадыре по ЦЕНЕ 286000 рублей
В наличии на складе

Котёл КВр-0,35 на древесных отходах с топкой ОУР

Цена
286 000 р.
Доставляем Отопительные котлы
в г. Анадырь

Кратко о характеристиках

Отапливаемый объем, м³10500
Расход топлива, кг/ч165
Вид топкиОУР
ТопливоДрова

Котел КВр-0,35 с топкой ОУР в Грозном, работающий на ДВО, используется в стационарных и модульных котельных. Оснащен ручной топкой, что позволяет добиться высокого показателя КПД. Высокая экономичность использования достигается за счет дешевизны топлива и полноценного его сгорания.

Характеристики

Аэродинамическое сопротивление, Па (мм. вод. ст.)
46
Конвективная поверхность нагрева, м²
16.4
КПД, не менее, %
85
Масса котла (без воды), кг
1840
Мощность (кВт), кВт
350
Мощность, Гкал
0.3
Мощность, МВт
0.35
Низшая теплота сгорания топлива, кКал/кг
2.5
Площадь отопления, м²
3500
Отапливаемый объем, м³
10500
Радиационная поверхность нагрева, м²
9.1
Расход теплоносителя среды, м³/ч
12
Расход топлива, кг/ч
165
Расчетный срок службы, не менее, лет
10
Цена, руб.
286000
Расход условного топлива, кг/ч
59
Температура воды на входе в котёл, не менее, °C
50
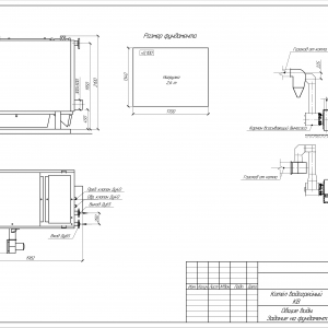
Габаритные размеры (ДхШ), мм
1982*1340*2100
Гидравлическое сопротивление при перепаде t, МПа (кгс/cм²)
0,05
Давление рабочей среды, МПа (кгс/cм²)
0,3-0,6 (3,0-6,0)
Класс котла
2
Номинальное разрежение в топке при работе, Па
20-40
Рабочий график, С 70/95
Температура уходящих газов, °C
180-200
Тяга
Принудительная
Вид топки
ОУР
Топливо
Дрова, Щепа, Опил, Кора
Тип
КВр
Комплект
Котёл КВр-0,35 на древесных отходах с топкой ОУР
Котёл КВр-0,35 на древесных отходах с топкой ОУР
1 штука
Запорная арматура
1 штука
Клапан предохранительный
1 штука
Клапан обратный
1 штука
Термометры в оправе
1 штука
Манометры
1 штука
Краны трехходовые Ду-15
1 штука
Вентили дренажные Ду-20
1 штука
Вентили воздушные Ду-15
1 штука
Вентилятор поддува
1 штука
Как все происходит
на видео
Смотреть видео галерею
Возникли
вопросы?
Закажите консультацию
Или позвоните
8 (800) 551-45-60
Ответим на вопросы
Расскажем о скидках
Презентуем товар
Поможем выбрать
Доставляем Отопительные котлы
в г. Анадырь

Устройство и принцип работы

Основными частями дровяного котла КВр-0,35 с топкой ОУР являются топка, система трубопровода и каркас, обшитый теплоизоляционными материалами. Топливо подается в топку, начинается процесс горения, в результате которого выделяется тепло и нагревается система трубопровода. Полученная горячая вода может использоваться как для отопления помещений, так и для обеспечения нужд горячего водоснабжения.

Газы, выделившиеся при горении, проходят дважды по конвективной части, чтобы теплоотдача была максимальной, после чего выводятся. Зола, оставшаяся в результате горения, вычищается вручную или посредством специального оборудования.

На задней стенке котла имеется специальная дверца для удобства чистки оборудования.

ОУР — это ручное топочное устройство, которое способствует полноценному сжиганию даже низкосортного топлива за счет образования полукипящего слоя. Оно состоит из стального короба, решетки из водоохлаждаемых труб и стального уголка. Топка оснащена системой принудительной подачи воздуха, что обеспечивает равномерное его распределение по конвективной части и улучшение процессов горения.

Горение топлива в полукипящем слое имеет определенные преимущества: взаимодействие крупных и мелких частиц усиливает процесс горения за счет трения и движения мелких фракций угля. Так и образуется полукипящий слой. В итоге получается качественное сжигание топлива и уменьшение выбросов золы.

Особенности и преимущества

  • Высокий показатель КПД;
  • Система полноценного сжигания именно древесного топлива;
  • Особа гидравлическая система, предотвращающая появление накипи;
  • Отсутствие водоподготовки;
  • Легкий монтаж;
  • Возможность установить оборудование для автоматизации процессов.

Размещение и установка

Дровяной котел КВр-0,35 с топкой ОУР устанавливается на специально подготовленный фундамент и крепится анкерными болтами. Важно обеспечить ровную установку котла и обеспечить воздухоподачу к топке. Далее котел присоединяется к средствам водоснабжения, устанавливается вся запорная арматура и КИП, устанавливаются система отвода газов и элементы управления.

Эксплуатация и техническое обслуживание

За счет простого устройства, котел КВр-0,35 на древесных отходах с топкой ОУР имеет долгий срок службы и простые условия эксплуатации. Котел может работать сразу после установки, после полного осмотра и тестового запуска. Производить ремонтные работы и техническое обслуживание могут только квалифицированные специалисты с разрешением на данный вид деятельности.

Следите за новостями в социальных сетях
Наши цифры
скажут за нас все
10
Срок эксплуатации оборудования – более десяти лет
20
Двадцать лет
трудимся для вас
10
Меньше десяти дней
на изготовление товара
500
Более пятисот
точек поставки
Вы смотрели